Скидка 22% на вертикальные водонагреватели из нержавеющей стали объемом 500 литров
Промышленный электрический водонагреватель 9000 литров предназначен для горячего водоснабжения жилых и промышленных объектов, больниц, учебных заведений и гостиничных комплексов. Нагрев воды в водонагревателях может производиться, как от встроенных блок - ТЭНов, так и от теплообменника косвенного нагрева.
Корпус емкости водонагревателя 9000 литров и нагревательные элементы изготовлены из нержавеющей стали и рассчитаны на длительный срок эксплуатации. При применении водонагревателя для нагрева воды для технологических нужд производства корпус может быть изготовлен из углеродистой стали. Снаружи емкость изолирована высококачественной теплоизоляцией, сверху защищена полимерной пленкой.
Водонагреватель вертикальный 9000 л. легко обеспечивает пиковые расходы системы горячего водоснабжения и может применяться совместно с другими источниками горячего водоснабжения в качестве основного или резервного. Теплообменник косвенного нагрева бойлера может быть выполнен, как в виде внешнего пластинчатого теплообменника, так и в виде встроенного змеевика из нержавеющей стали, теплоноситель в который подается от системы отопления здания.
Гарантия производителя 12 месяцев
Декларация соответствия Таможенного союза
| ХАРАКТЕРИСТИКИ | ПОКАЗАТЕЛИ | ЕДИНИЦЫ ИЗМЕРЕНИЯ |
|---|---|---|
| Артикул | АВП-НВ-9000 | |
| Ёмкость (±5%) | 9000 | литр |
| Материал бака | AISI 304 / S235JR (ст.3) | |
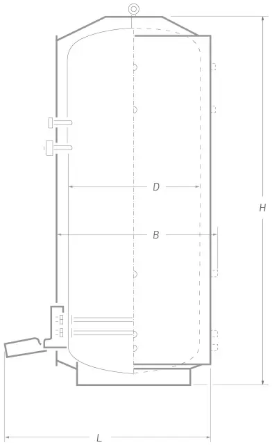
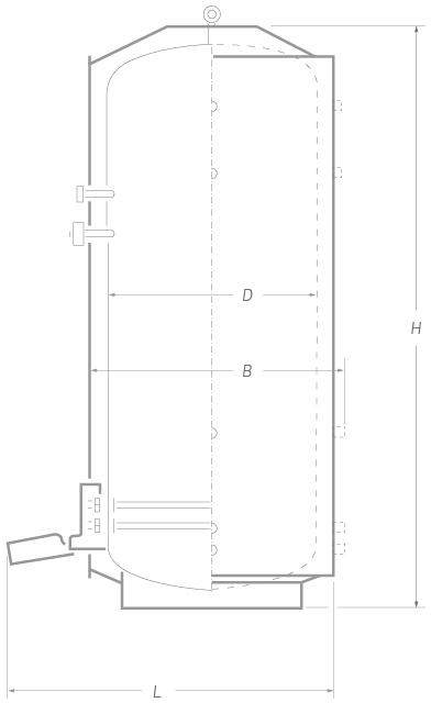
| Диаметр бака D | 1800 | мм |
| Внешний диаметр B | 2160 | мм |
| Высота H | 3970 | мм |
| Масса водонагревателя | 1800 | кг |
| Объем в упаковке | 12 | м³ |
| Толщина теплоизоляции | 100 | мм |
| Допустимое давление | 0,6 | МПа |
| Рекомендуемая электрическая мощность встроенных ТЭНов (опция) | 75 | кВт |
| Время нагрева при рекомендуемой мощности от +5 до +65ºС ΔT=60ºC | 8,3 | час |
| Максимальная электрическая мощность встроенных ТЭНов | 300 | кВт |
| Пределы настройки термостата (±5) | от +30 до + 85 | ºС |
| Номинальное напряжение для блок ТЭНов (±10%) | 400 | В |
| Рекомендуемая мощность внешнего/внутреннего теплообменника (опция) | 360 | кВт |
| Патрубки холодной / горячей воды. вн. резьба | 2 | дюймы |
| Сливной патрубок вн. резьба | 1 ¼ | дюймы |
| Патрубок под предохранительный клапан вн. резьба | 1 ¼ | дюймы |
| Гайка под гильзу терморегулятора / термоманометра вн. резьба | 1/2 | дюймы |
| Патрубок рециркуляции вн. резьба (опция) | 1 ¼ | дюймы |
| Количество гаек под блок-ТЭН G 1½" стандартная комплектация | 6 | шт. |
Промышленный электрический водонагреватель объёмом 9000 литров применяется в системах горячего водоснабжения объектов с высоким и постоянным потреблением воды. Оборудование используется на крупных производственных площадках, в медицинских учреждениях, спортивных комплексах, гостиницах и инфраструктурных объектах, где требуется стабильная подача горячей воды при значительных пиковых нагрузках.
Бак и нагревательные элементы изготавливаются из нержавеющей стали и рассчитаны на длительную эксплуатацию в режиме интенсивной работы. Для технологических процессов допускается исполнение корпуса из углеродистой стали. Слой теплоизоляции толщиной 100 мм снижает теплопотери и позволяет поддерживать заданную температуру воды без лишних энергозатрат.
Вертикальный накопительный водонагреватель на 9000 литров подходит для работы как в качестве основного источника горячей воды, так и в резервных схемах. Основные параметры оборудования:
Конструкция допускает подключение внешнего пластинчатого теплообменника либо установку встроенного змеевика для косвенного нагрева от системы отопления. Это обеспечивает гибкую интеграцию оборудования в существующие инженерные сети объекта.
При проектировании водонагревателей «Невский» особое внимание уделяется надёжности и безопасности эксплуатации:
Звоните по телефону